
“Tarneit SMSF Investment – Turnkey 3-Bedroom Single-Contract Property in Harlow Estate”
Property analysis by:
Investment Highlights
- Completed single-contract SMSF-approved property in the highly sought-after Harlow Estate, Tarneit.
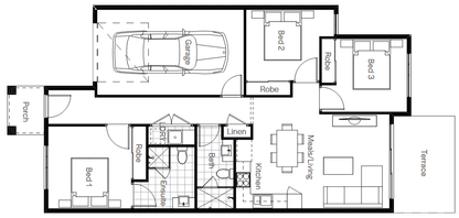
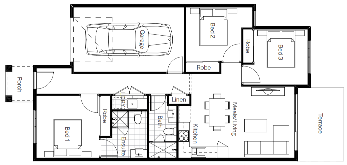
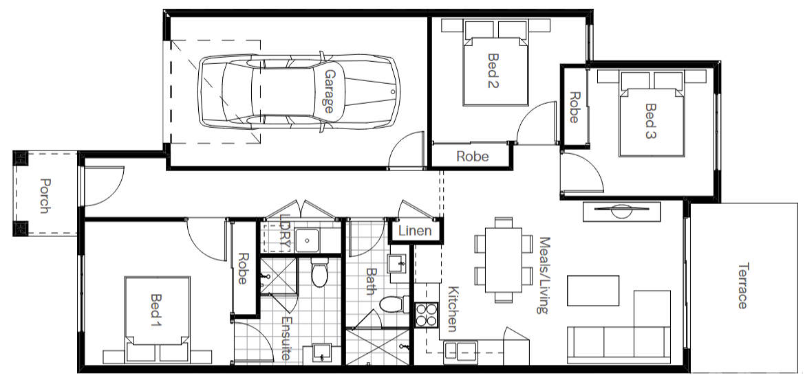
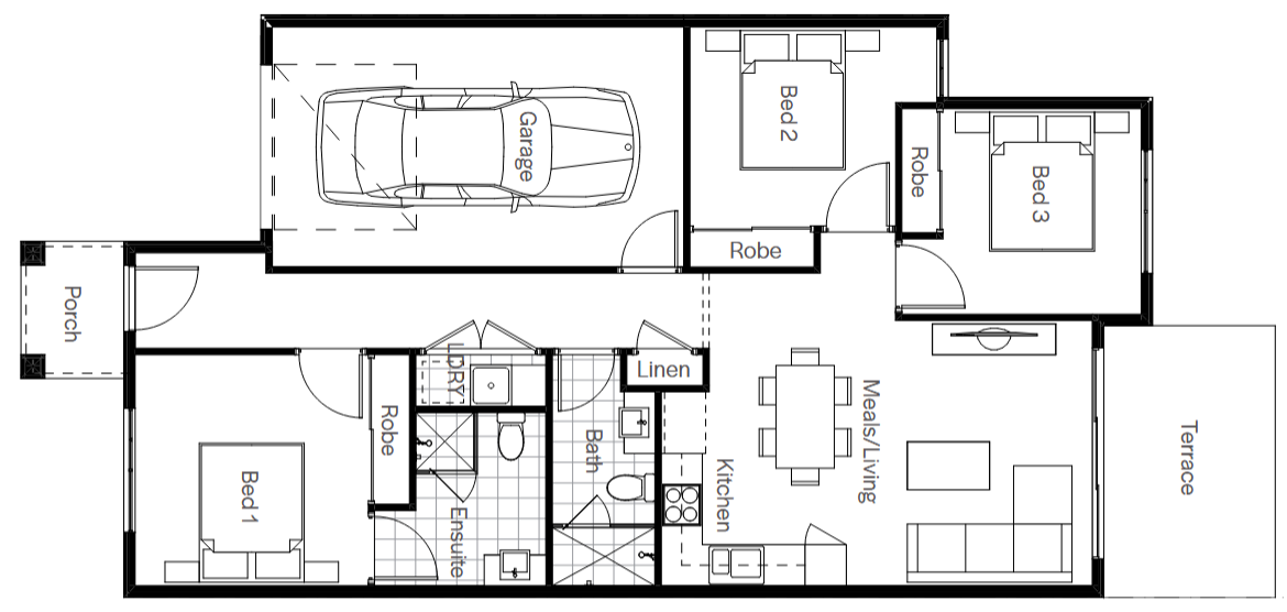
- Modern 3-bedroom, 2-bathroom turnkey townhouse offering stable returns and low ongoing maintenance costs.
- Ideal for SMSF investors — one-part contract structure ensures simplified finance and compliance.
- Located within one of Melbourne’s fastest-growing western suburbs, just minutes from Tarneit Station and Tarneit Central Shopping Centre.
- Excellent accessibility to major employment hubs including Werribee, Truganina, and Laverton North industrial precincts.
- Low 1.6 % vacancy rate and strong population growth underpin consistent tenant demand.
- Modern energy-efficient design delivering long-term asset performance and tenant appeal.
Key Financials
Purchase price: $664,900 (Single Contract)
Configuration: 3 Bedrooms | 2 Bathrooms | 1 Car Garage
Rental appraisal: $520 per week (~$26,607.36 p.a.)
Gross yield: 4.0 %
Vacancy rate: 1.6 %
10-year avg. annual growth: 3.3 %
Location & Growth Drivers
Tarneit is one of Victoria’s leading growth corridors, located approximately 25 km west of Melbourne’s CBD. The suburb has experienced sustained growth due to its affordability, connectivity, and access to high-quality amenities. Major retail, transport, and education infrastructure continue to attract families and professionals seeking lifestyle convenience and accessibility.
Key projects such as the $50 million Tarneit Station upgrade, the proposed Tarneit West Train Station, and the $150 million Wyndham Stadium are driving both rental demand and long-term capital appreciation. With strong demographics and a young professional tenant base, Tarneit remains one of the most resilient and high-performing western Melbourne investment markets.
Build Specification (Turnkey)
- Single-contract SMSF-compliant turnkey townhouse package.
- Full turnkey inclusions – fencing, driveway, blinds, and landscaping included at handover.
- Stone benchtops throughout kitchen and bathrooms with soft-close cabinetry.
- Stainless-steel appliances, LED downlights, and quality floor coverings included.
- Split-system air-conditioning to living zones and energy-efficient design throughout.
- 2590 mm ceiling height and modern facade providing superior street appeal.
- Secure garage with remote door access and internal entry.
- 10-year structural warranty and comprehensive maintenance period post-completion.