
“Wyndham Vale SMSF Co-Living Investment – Turnkey 4-Bedroom Property in Jubilee Estate”
Property analysis by:
Investment Highlights
- SMSF-approved co-living investment within the sought-after Jubilee Estate in Wyndham Vale.
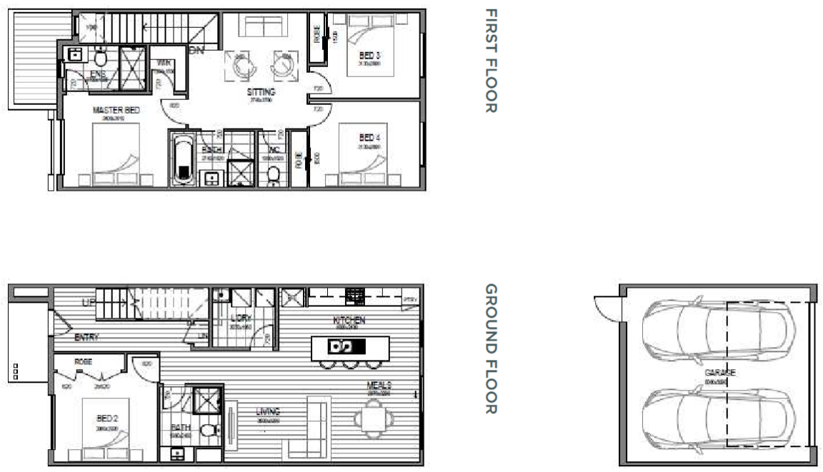
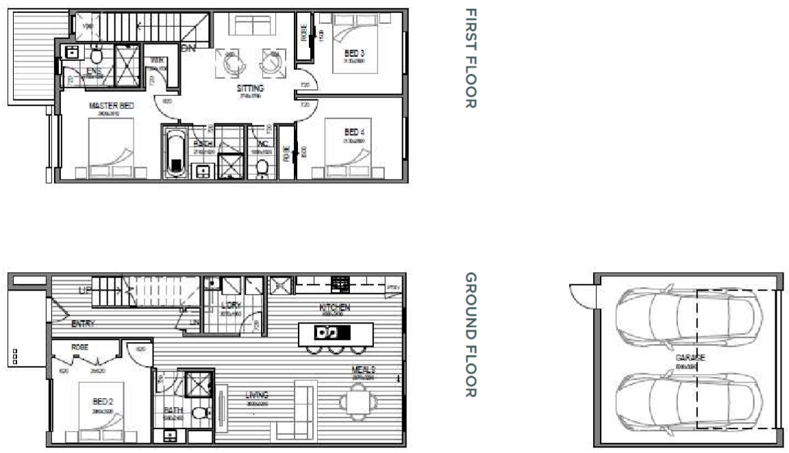
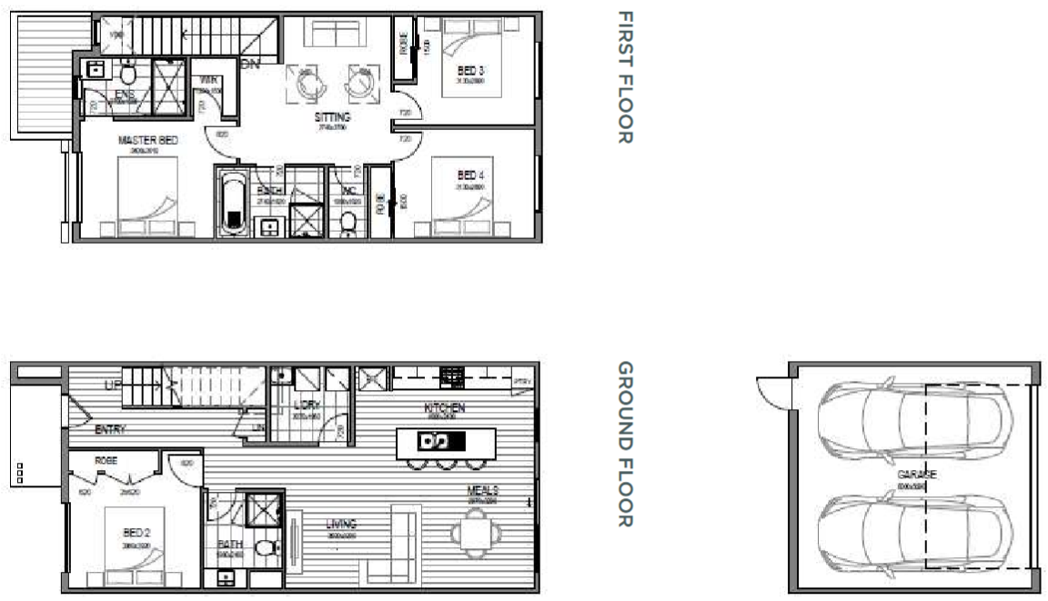
- Purpose-built 4-bedroom layout designed for multi-tenant living, maximising yield and occupancy.
- Single-contract turnkey package with fixed pricing, ideal for SMSF lending and low-maintenance ownership.
- Strategically located 31 km from Melbourne CBD, offering strong commuter appeal and reliable rental demand.
- Close proximity to Wyndham Vale Train Station, Manor Lakes Shopping Centre, and major education and healthcare facilities.
- High-quality finishes, energy-efficient inclusions, and co-living compliance support long-term tenant stability and income consistency.
Key Financials
Purchase price: $679,900 (Land + Build)
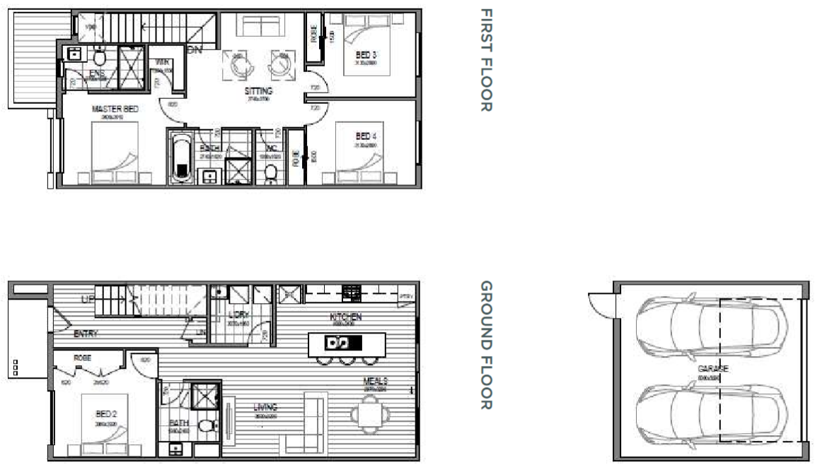
Configuration: 4 Bedrooms | 3 Bathrooms | 2 Car Garage
Rental appraisal: $840 per week (~$43,068.48 p.a.)
Gross yield: 6.3%
Vacancy rate: 1.4%
Location & Growth Drivers
Wyndham Vale is part of Melbourne’s high-growth south-west corridor and one of the region’s most dynamic residential markets. The suburb’s connectivity via the Wyndham Vale Train Station (Geelong Line) and the Western Freeway enables easy access to Melbourne CBD and Geelong, driving strong tenant demand.
The area benefits from rapid infrastructure development, including new education facilities, retail hubs, and healthcare precincts. Jubilee Estate itself is a master-planned community with parks, walking trails, and a residents’ exclusive Club Jubilee aquatic centre. With low vacancy rates and ongoing urban expansion, Wyndham Vale continues to deliver consistent growth and attractive investment returns.
Build Specification (Turnkey)
- Full turnkey inclusions – driveway, fencing, blinds, landscaping, and letterbox included.
- Energy-efficient build with split-system heating and cooling to living and bedroom zones.
- Stone benchtops throughout kitchen and bathrooms, with soft-close cabinetry and tiled wet areas.
- Stainless-steel European appliances including oven, cooktop, and rangehood.
- LED downlights, roller blinds, and flyscreens installed throughout.
- Colorbond roof, remote-controlled garage, and 7-year structural guarantee.
- Co-living compliant design ready for multi-tenant leasing and professional property management.