
“Darley Investment – Turnkey 3-Bedroom Property in Orchard Square Estate”
Property analysis by:
Investment Highlights
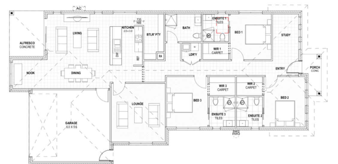
- Purpose-built Co-Living 1A design delivering strong rental performance and positive cash flow potential.
- Strategically located in Darley’s Orchard Square Estate, minutes from Bacchus Marsh town centre, schools, and freeway access.
- Fully compliant Co-Living configuration attracting professionals and small households within a high-demand rental market.
- Modern turnkey package with premium inclusions, energy-efficient design, and durable finishes for long-term investment performance.
- Excellent growth location supported by infrastructure development and low vacancy rates, enhancing tenant stability.
Key Financials
Purchase price: $714,000 (Land + Build)
Land price: $300,000
Build price: $414,000
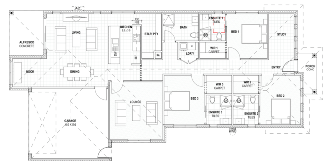
Configuration: 3 Bedrooms | 3 Bathrooms | 2 Car Garage
Rental appraisal: $1,050 per week (~$53,890.20 p.a.)
Gross yield: 7.5%
Vacancy rate: 1.3%
Location & Growth Drivers
Darley, located within the wider Bacchus Marsh corridor, offers the perfect balance of regional lifestyle and metropolitan accessibility. The suburb benefits from direct freeway connections to Melbourne and Ballarat, strong local employment opportunities, and a growing base of essential services.
Orchard Square Estate combines modern design, landscaped streets, and easy access to schools, shopping precincts, and public transport. The area’s ongoing development and affordable rental options continue to attract a steady tenant base, underpinning long-term capital growth and investment stability.
Build Specification (Turnkey)
- Co-Living 1A compliant design with three bedrooms, each featuring private ensuite or bathroom access.
- Full turnkey inclusions – fencing, driveway, clothesline, blinds, letterbox, and complete landscaping.
- 20 mm stone benchtops to kitchen, bathrooms, and laundry with soft-close cabinetry and tiled wet areas.
- Ducted refrigerated heating and cooling for year-round climate comfort.
- 900mm stainless steel appliances including cooktop, oven, and rangehood.
- LED downlights, roller blinds, and flyscreens included throughout.
- Coloured concrete driveway, perimeter fencing, and landscaped gardens for a ready-to-lease finish.
- Energy-efficient construction with compliance to 7-Star energy standards and full builder warranty.