
“Donnybrook Standard Investment – Turnkey 2-Bedroom Townhome in Peppercorn Hill Estate”
Property analysis by:
Investment Highlights
- Affordable turnkey 2-bedroom townhome in the Peppercorn Hill Estate, one of Donnybrook’s fastest-growing residential communities.
- Ideal for first-time investors and SMSFs seeking a low-maintenance property with strong returns and reliable tenant demand.
- Delivers a solid 5.9% gross rental yield with long-term capital growth potential averaging 3.6% per year.
- Strategically located near Donnybrook Station, Hume Freeway, Merrifield City, and future retail and education hubs.
- Fully turnkey home including landscaping, fencing, blinds, and appliances — ready to lease on completion.
- 7-Star energy-rated construction for efficiency and durability, supporting strong long-term investment performance.
- Land title expected Q4 2025, with construction commencing immediately thereafter.
Key Financials
Purchase price: $499,990 (Land + Build)
Land price: $105,660
Build price: $394,330
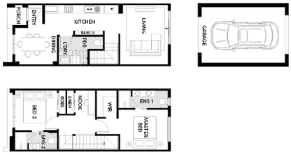
Configuration: 2 Bedrooms | 2 Bathrooms | 1 Car Garage
Rental appraisal: $590 per week (~$29,728.92 p.a.)
Gross yield: 5.9%
Vacancy rate: 3.1%
10-year avg. annual growth: 3.6%
Location & Growth Drivers
Peppercorn Hill in Donnybrook is part of Melbourne’s key northern growth corridor, surrounded by extensive infrastructure development and strong population growth. The estate is master-planned to provide residents with access to transport, education, open spaces, and retail amenity — ensuring steady rental absorption and strong future value uplift.
With Donnybrook Station and Merrifield City less than 10 minutes away, and direct access to the Hume Freeway connecting to Melbourne’s CBD in under 40 minutes, this location offers both convenience and long-term growth potential.
Build Specification (Turnkey)
- Full turnkey package with internal and external completion — ready for leasing on settlement.
- Stone benchtops, stainless-steel appliances, and soft-close cabinetry in the kitchen and bathrooms.
- Heating and cooling to main living areas and bedrooms for year-round comfort.
- LED lighting, quality flooring, blinds, and energy-efficient hot water system included.
- Front and rear landscaping, fencing, and driveway completed at handover.
- Low-maintenance exterior finishes ensuring long-term durability and minimal upkeep.
- Comprehensive builder warranty and post-handover maintenance guarantee provided.