
“Narre Warren SMSF Rooming House – $50.2k Income, 6.2% Yield, Completed Turnkey Near Fountain Gate”
Property analysis by:
Investment Highlights
- Completed SMSF-approved turnkey rooming house in Narre Warren, positioned close to Fountain Gate Shopping Centre and Monash Freeway access.
- Purpose-built co-living layout generating approximately $50,243 p.a. in gross rental income with a strong 6.2% yield.
- Delivered as a finished, ready-to-lease build — ideal for investors seeking immediate returns and reduced holding risk.
- Single-contract structure designed for SMSF strategies, supported by full depreciation schedules and professional rooming-house management potential.
- Independent rental appraisal of $300 – $325 per room per week (furnished & bills-inclusive) confirming stable demand and diversified income.
- Strategic location within walking distance of retail, public transport, education, and lifestyle amenities.
- Low 0.9% vacancy rate and consistent 4.6% 10-year average annual capital growth strengthen both cashflow and equity performance.
Key Financials
Purchase price: $804,100 (Land + Build)
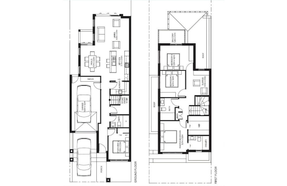
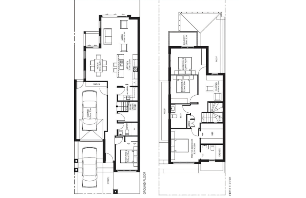
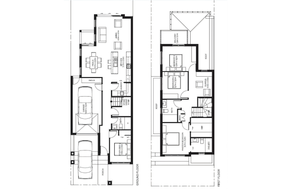
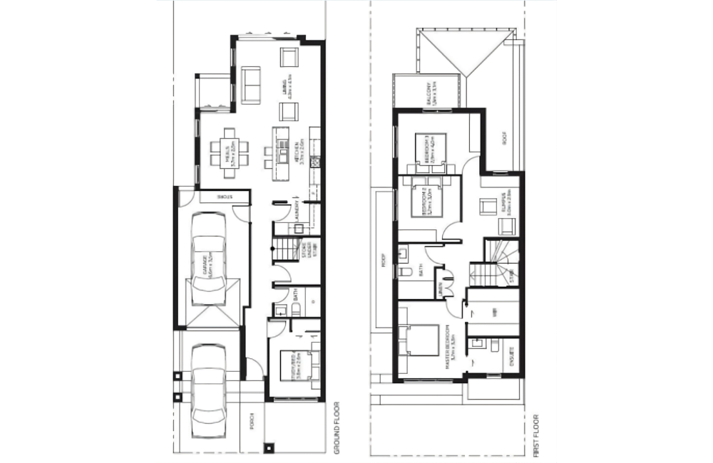
Configuration: 4 Bedrooms | 3 Bathrooms | Parking per plans (Rooming-ready design)
Rental appraisal: $975 per week (~$50,243.70 p.a.)
Gross yield: 6.2%
Vacancy rate: 0.9%
Location & Growth Drivers
Narre Warren is a prime south-east Melbourne suburb offering exceptional connectivity and lifestyle convenience. Residents benefit from proximity to Fountain Gate Shopping Centre, Narre Warren Station, and major employment corridors via the Monash Freeway. The suburb’s low vacancy rate and consistent capital growth demonstrate strong underlying demand for quality accommodation.
Continued public infrastructure upgrades, population growth, and amenity expansion across Casey and Greater Dandenong continue to underpin Narre Warren’s rental strength and long-term property performance — making it a top-tier SMSF co-living investment location.
Build Specification (SMSF Rooming House)
- Completed turnkey build with immediate leasing potential — no waiting period for construction or handover.
- Rooming-house-compliant design featuring 4 bedrooms and 3 bathrooms for diversified rental income.
- Ducted heating throughout plus split-system cooling to living zones for year-round comfort.
- 20 mm stone benchtops to kitchen and bathrooms with soft-close cabinetry and tiled wet areas.
- Stainless-steel appliances including oven, cooktop, rangehood, and dishwasher.
- LED lighting, quality floor coverings, and window furnishings installed throughout.
- Front and rear landscaping, colour concrete driveway, fencing, and letterbox included at handover.
- Furniture package optional ($18,000) for fully furnished leasing strategy.
- Energy-efficient 6-Star build with comprehensive builder warranty and compliance certification for SMSF structures.