
“Tarneit SMSF Investment – Turnkey 3-Bedroom Home in Harlow Estate”
Property analysis by:
Investment Highlights
- SMSF-approved turnkey property in the highly sought-after Harlow Estate, Tarneit.
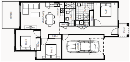
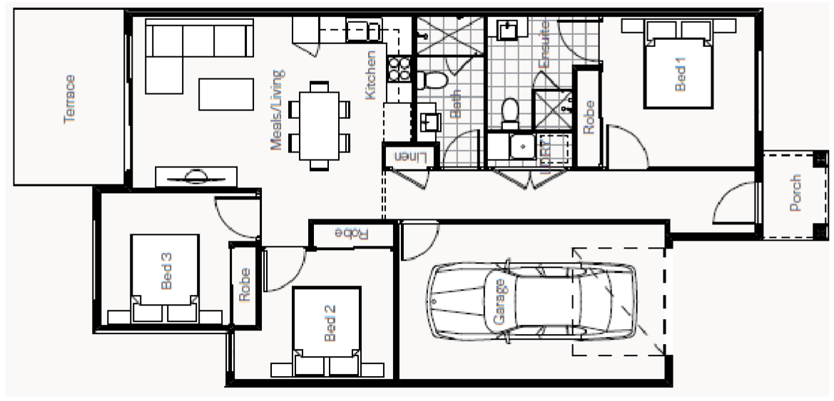
- Modern 3-bedroom, 2-bathroom layout with open-plan living, designed for long-term tenant appeal.
- Fully completed turnkey package ideal for SMSF investors seeking immediate rental income.
- Situated within Melbourne’s western growth corridor, just 25 km from the CBD and 3 km from Tarneit Central Shopping Centre.
- Strong transport connectivity via Tarneit Train Station and the Western Freeway.
- Low 1.6% vacancy rate ensures consistent occupancy and rental performance.
- High-quality inclusions, energy efficiency, and durable finishes provide long-term value and reduced maintenance costs.
Key Financials
Purchase price: $620,000 (Land + Build)
Configuration: 3 Bedrooms | 2 Bathrooms | 1 Car Garage
Rental appraisal: $500 per week (~$25,584 p.a.)
Gross yield: 4.1%
Vacancy rate: 1.6%
Location & Growth Drivers
Tarneit is one of Victoria’s most dynamic residential growth suburbs, offering affordable housing, excellent connectivity, and expanding infrastructure. The suburb is located just 25 km west of Melbourne’s CBD, with direct access via the Tarneit Train Station and Western Freeway. With consistent population growth, increasing employment opportunities, and a high proportion of owner-occupiers, Tarneit continues to deliver stable rental and capital growth outcomes.
The Harlow Estate is a modern master-planned community featuring landscaped parks, walking trails, and proximity to schools, shops, and medical facilities. Future developments, including the Tarneit North Town Centre, Riverdale Village expansion, and the Wyndham Stadium Precinct, further reinforce Tarneit’s position as a premier investment location in Melbourne’s west.
Build Specification (Turnkey)
- Full turnkey inclusions – fencing, driveway, letterbox, blinds, and landscaping included.
- Contemporary design with open-plan kitchen, dining, and living zones for modern functionality.
- Stone benchtops in kitchen and bathrooms with soft-close cabinetry and tiled wet areas.
- Stainless-steel appliances including oven, cooktop, and rangehood.
- Split-system air conditioning to living area and gas ducted heating throughout.
- LED downlights, quality floor coverings, and window furnishings installed.
- Energy-efficient 6-Star construction with water-saving fixtures and solar hot water system.
- Comprehensive builder warranty and post-completion quality inspection included.