
“Tarneit SMSF Investment – Completed Turnkey 3-Bedroom Home in Harlow Estate”
Property analysis by:
Investment Highlights
- Completed single-contract SMSF-compliant property located in the sought-after Harlow Estate, Tarneit.
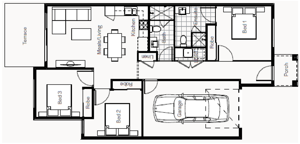
- Modern 3-bedroom, 2-bathroom turnkey home offering immediate rental potential and low-maintenance ownership.
- Perfect for SMSF investors — one-part contract with strong depreciation benefits and simple lending compliance.
- Positioned just 25 km west of Melbourne CBD, minutes from Tarneit Station, Tarneit Central Shopping Centre, and local schools.
- Strong regional fundamentals with a 1.6 % vacancy rate and consistent long-term capital growth of 3.3 % p.a.
- Full turnkey inclusions with quality finishes, landscaping, and structural warranty — ready to lease or occupy immediately.
- Proximity to major employment hubs in Werribee, Laverton, and Truganina enhances long-term rental stability.
Key Financials
Purchase price: $635,000 (Single Contract)
Configuration: 3 Bedrooms | 2 Bathrooms | 1 Car Garage
Rental appraisal: $500 per week (~$25,584 p.a.)
Gross yield: 4.0 %
Vacancy rate: 1.6 %
10-year avg. annual growth: 3.3 %
Location & Growth Drivers
Tarneit continues to lead Melbourne’s western growth corridor, supported by sustained infrastructure investment and exceptional liveability. The area features established transport links, schools, and retail amenities, making it one of the region’s most desirable investment destinations.
Key projects — including the Tarneit West Train Station, the Wyndham Stadium precinct, and significant road network upgrades — continue to drive growth and employment opportunities. With strong demand from young families and professionals, Tarneit remains one of the most reliable and stable rental markets in Victoria.
Build Specification (Turnkey)
- Completed single-contract turnkey home, SMSF-suitable and ready to lease.
- Full turnkey inclusions — blinds, driveway, fencing, landscaping, and letterbox provided.
- 20 mm stone benchtops in kitchen and bathrooms with soft-close cabinetry.
- Stainless-steel appliances, LED downlights, and high-quality floor coverings throughout.
- Split-system air-conditioning for efficient climate control and energy performance.
- Open-plan living with modern facade, 2590 mm ceilings, and tiled wet areas.
- Comprehensive builder warranty and post-handover maintenance support included.