
“Shepparton Rooming Investment – Class 1B Approved 5-Bedroom High-Yield Property in Regional Victoria”
Property analysis by:
Investment Highlights
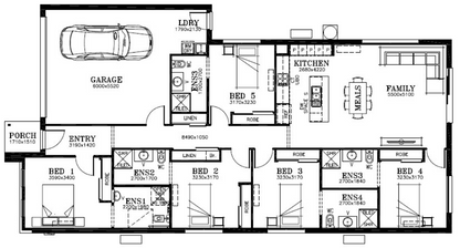
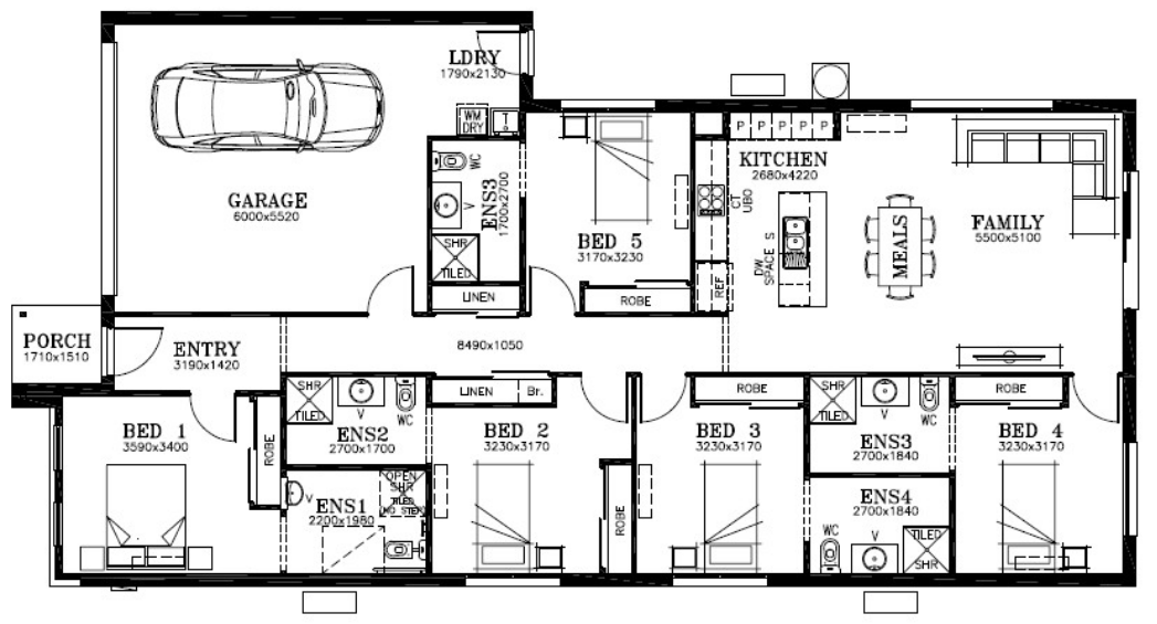
- Purpose-built Class 1B rooming house offering five bedrooms and five bathrooms, each with private ensuites, designed for compliance with boarding-house and SDA standards.
- Exceptional rental performance with diversified room-by-room income streams delivering an impressive 10% gross yield.
- Located in Shepparton — a major regional centre with strong rental demand driven by healthcare, manufacturing, and education sectors.
- Fixed-price turnkey construction with full inclusions and one SDA-compliant ensuite room, ready for specialist management or general leasing.
- Low 1.1% vacancy rate and solid 6.4% 10-year average annual capital growth reinforce cash flow security and long-term equity potential.
- SMSF-suitable configuration with Class 1B certification and professional management options available.
Key Financials
Purchase price: $768,300 (Land + Build)
Land price: $260,000
Build price: $508,300
Configuration: 5 Bedrooms | 5 Bathrooms | 2 Car Spaces
Rental appraisal: $1,500 per week (~$77,142 p.a.)
Gross yield: 10.0 %
Vacancy rate: 1.1 %
10-year avg. annual growth: 6.4 %
Location & Growth Drivers
Shepparton is the commercial and cultural centre of northern Victoria, approximately 180 km from Melbourne. It offers a broad employment base across healthcare, logistics, manufacturing, and education — all contributing to strong year-round rental demand.
Ongoing infrastructure projects such as the GV Health Redevelopment, Shepparton Rail Line Upgrade, and Maude Street Mall Revitalisation are strengthening the city’s economic and housing fundamentals. With affordable property pricing, robust yields, and one of the lowest regional vacancy rates in Victoria, Shepparton remains a prime destination for investors seeking consistent cash flow and long-term capital growth.
Build Specification (Turnkey Class 1B)
- Fully approved Class 1B rooming house design with 1 SDA-compliant ensuite bedroom for accessibility compliance.
- 2590 mm ceiling height and 7-Star energy rating for improved comfort and sustainability.
- Five self-contained ensuite bedrooms with premium fixtures and full ceramic tiling.
- Caesarstone benchtops, stainless-steel appliances, and ample kitchen storage.
- Six split-system air-conditioning units (one per room plus living area) for individual climate control.
- Digital key-lock systems and security alarm for enhanced tenant privacy and safety.
- Electric heat-pump hot water system providing low-cost, energy-efficient operation.
- Full landscaping, fencing, concrete driveway, letterbox, and clothesline included at handover.
- Blinds, NBN connection, and 10-year structural warranty with a 90-day post-handover maintenance period.