
“Weir Views Co-Living 1A Investment – Turnkey 4-Bedroom Rooming Opportunity”
Property analysis by:
Investment Highlights
- Purpose-built Co-Living 1A turnkey property designed for high-yield rental performance and shared accommodation.
- Strategically positioned within Melbourne’s western growth corridor, minutes from Melton’s established amenities.
- Designed for professionals and key workers seeking furnished, bills-inclusive rental options.
- Fully compliant with Co-Living 1A standards, offering long-term investment stability and strong tenant appeal.
- High-quality turnkey inclusions, streamlined property management setup, and modern design maximising tenant comfort.
Key Financials
Purchase price: $757,450 (Land + Build)
Land price: $369,000
Build price: $388,450
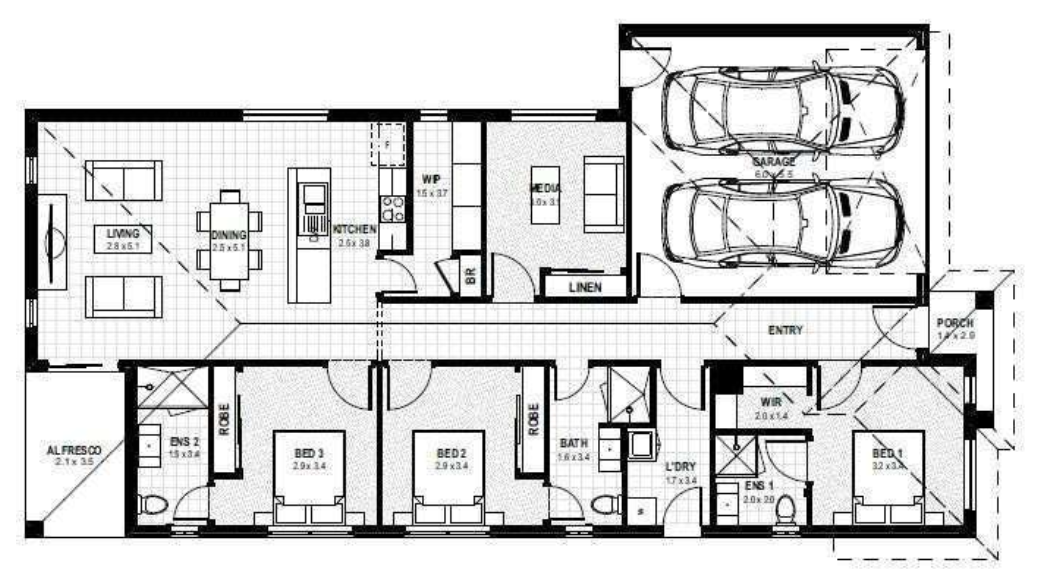
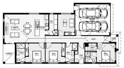
Configuration: 4 Bedrooms | 3 Bathrooms | 2 Car Garage
Land size: 400 m² | House size: 188.46 m²
Rental appraisal: $900 per week (~$45,817.20 p.a.)
Gross yield: 6.0%
Vacancy rate: 2.1%
Location & Growth Drivers
Weir Views is a thriving suburb within Melbourne’s western corridor, close to Melton and well-connected to the CBD via the Western Freeway. The suburb is supported by strong local infrastructure including schools, shopping centres, and public transport networks, making it an attractive location for renters and investors alike.
Continued development across the Melton South and Toolern precincts is driving population growth and demand for modern housing. Weir Views offers a balance of affordability and accessibility, with rental demand reinforced by key worker and professional tenant demographics seeking shared-living opportunities.
Build Specification (Turnkey)
- Co-Living 1A-compliant design featuring multiple self-contained rooms with private amenities and shared common areas.
- Full turnkey inclusions including blinds, floor coverings, fencing, driveway, and landscaping.
- Energy-efficient construction with high insulation standards, double glazing, and split-system heating/cooling.
- Modern kitchen with stone benchtops, stainless steel appliances, and soft-close cabinetry.
- LED lighting, tiled wet areas, and hard-wearing materials designed for low-maintenance management.
- Fully furnished package included, ensuring immediate rental readiness for shared accommodation.
- Comprehensive builder warranty and compliance documentation provided upon completion.