
“Benalla Dual Occupancy Investment – Turnkey 3+2 Bedroom Property Delivering Strong Regional Returns”
Property analysis by:
Investment Highlights
- High-performing dual-occupancy investment offering two rental incomes on a single title in the established regional hub of Benalla.
- Modern turnkey design with 3-bedroom and 2-bedroom layouts, maximising rental yield and reducing vacancy exposure.
- Located within a thriving regional growth corridor experiencing 7.5% average annual capital growth and exceptionally low vacancy.
- Full turnkey inclusions and fixed pricing ensure predictable costs and smooth handover.
- Ideal for investors seeking a balanced, dual-income asset with strong long-term capital growth potential.
- Strong demand driven by infrastructure expansion, regional migration, and ongoing employment growth across northeast Victoria.
Key Financials
Purchase price: $844,749 (Land + Build)
Land price: $245,000
Build price: $599,749
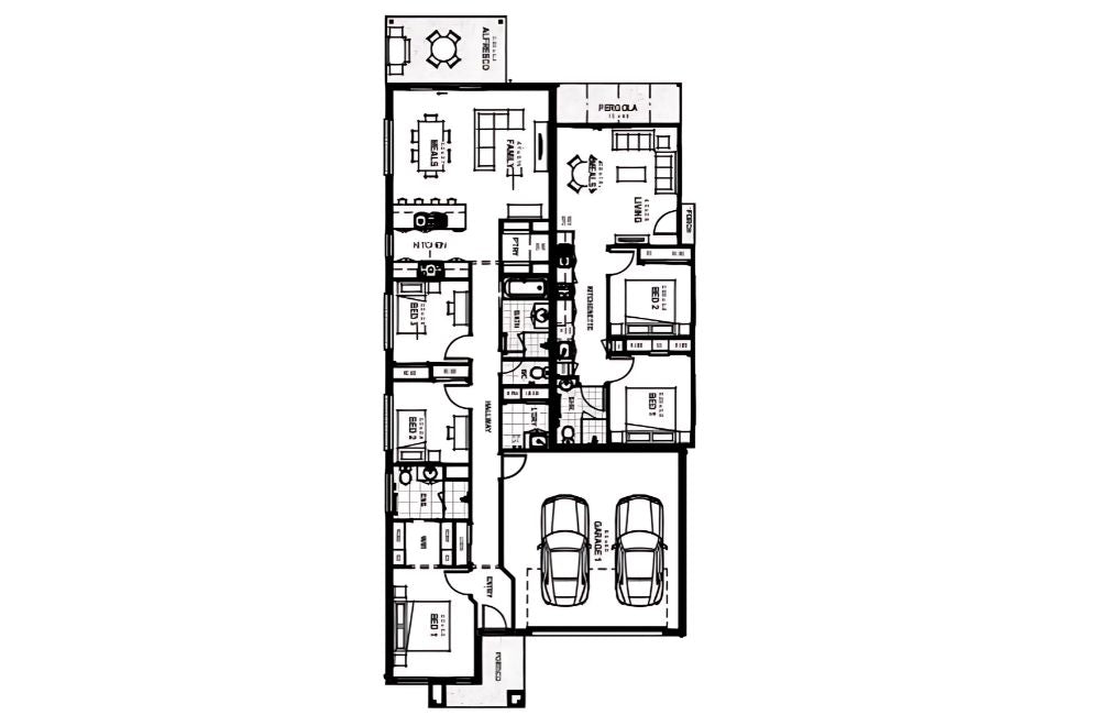
Configuration: Dual Key: 3 + 2 Bedrooms | 3 Bathrooms | 2 Car Garage
Rental appraisal: $910 per week (~$46,846.80 p.a.)
Gross yield: 5.5 %
Vacancy rate: 1.0 %
10-year avg. annual growth: 7.5 %
Location & Growth Drivers
Benalla is a key growth town in northeast Victoria, positioned strategically along the Hume Highway between Melbourne and Albury-Wodonga. The region’s affordability, improving infrastructure, and expanding local employment base are driving sustained population and rental growth.
With a low 1% vacancy rate and strong annual capital growth, Benalla continues to attract both local and interstate investors. Major employers, quality schools, and healthcare facilities underpin long-term rental demand, while regional infrastructure investment ensures enduring property performance.
Build Specification (Turnkey)
- Full turnkey dual-occupancy package, delivering two self-contained dwellings under one roof.
- Separate entrances, utilities, and metering to maximise rental independence and income potential.
- 20 mm stone benchtops, stainless-steel appliances, and premium floor coverings throughout.
- Energy-efficient 7-Star compliant construction with insulation and LED lighting.
- Split-system air-conditioning in living areas and bedrooms for year-round comfort.
- Coloured concrete driveway, fencing, landscaping, clothesline, and letterbox included.
- Comprehensive 10-year structural warranty and post-completion maintenance period.