
“Lara Standard Investment – Turnkey 3-Bedroom Home in Austin Estate (Cabot 15 Summit Design)”
Property analysis by:
Investment Highlights
- Modern turnkey 3-bedroom home within Austin Estate, Lara – a fast-growing and tightly held pocket of the Greater Geelong region.
- Contemporary Cabot 15 Summit design combining modern comfort, quality finishes, and efficient layout.
- Strong regional fundamentals with 5.1% 10-year average capital growth and a low 0.9% vacancy rate.
- Delivers a consistent 4.5% gross rental yield and long-term growth potential supported by Geelong’s expanding economy.
- Ideal for investors seeking a low-maintenance, fixed-price turnkey property with strong rental demand.
- Convenient access to Lara Train Station, Princes Freeway, schools, retail precincts, and Geelong CBD.
Key Financials
Purchase price: $566,500 (Land + Build)
Land price: $245,000
Build price: $321,500
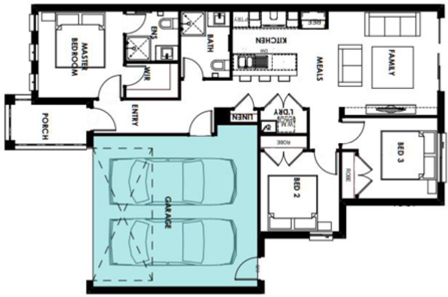
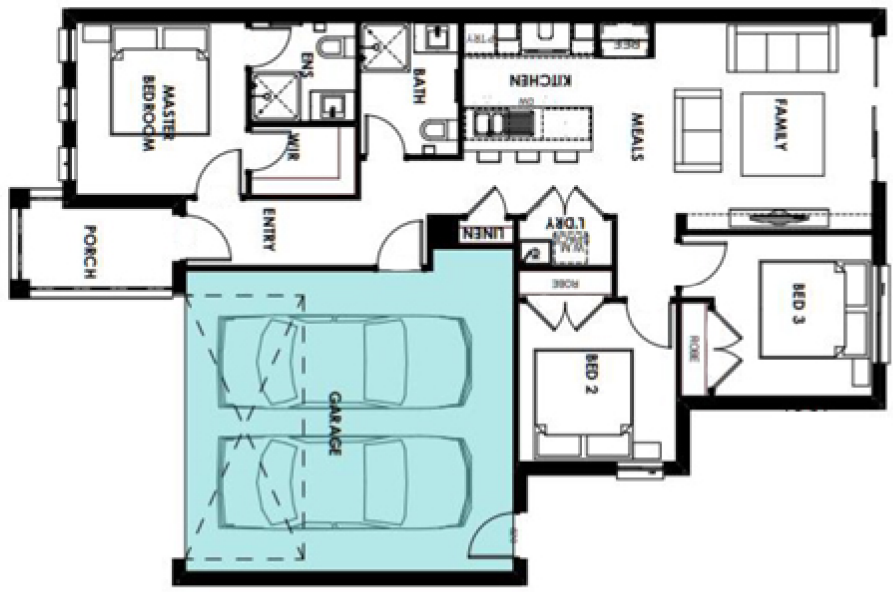
Configuration: 3 Bedrooms | 2 Bathrooms | 2 Car Garage
Rental appraisal: $500 per week (~$25,766 p.a.)
Gross yield: 4.5%
Vacancy rate: 0.9%
10-year avg. annual growth: 5.1%
Location & Growth Drivers
Lara continues to be one of the standout investment destinations in regional Victoria, benefiting from proximity to both Melbourne and Geelong via the Princes Freeway and direct V/Line connections. Its affordability, lifestyle appeal, and employment access make it a preferred suburb for families and professionals alike.
The Austin Estate is strategically located close to retail hubs, schools, and green open spaces, while future infrastructure projects in Greater Geelong and the Western Growth Corridor continue to underpin long-term value growth. With low vacancy and steady capital appreciation, Lara remains a strong, stable market for investors.
Build Specification (Turnkey)
- Fixed-price turnkey home with full inclusions and premium finishes.
- 20 mm stone benchtops to kitchen and bathrooms with soft-close cabinetry.
- 900 mm stainless-steel appliances, dishwasher, and tiled splashback.
- Gas ducted heating and split-system cooling to main living area.
- LED downlights, window furnishings, floor coverings, and built-in robes throughout.
- Exposed aggregate driveway, full landscaping, fencing, and letterbox included.
- Energy-efficient 7-Star construction with solar hot water system.
- Comprehensive structural warranty and 90-day maintenance coverage post-handover.