
“Clyde North Rooming 1B Investment – Turnkey 4-Bedroom Home in Saffron Estate”
Property analysis by:
Investment Highlights
- Specialist Rooming 1B turnkey property tailored for high-yield multi-tenant investment in Clyde North’s growth corridor.
- Strategically located within Saffron Estate, one of Melbourne’s most in-demand residential communities.
- Fully furnished, ready-to-lease design with private ensuites, shared living spaces, and durable finishes for minimal upkeep.
- Supported by major infrastructure, educational facilities, and the future Clyde Rail Extension driving long-term rental demand.
- High-performing regional rental location combining affordability, tenant stability, and strong capital growth potential.
Key Financials
Purchase price: $874,200 (Land + Build)
Land price: $397,000
Build price: $477,200
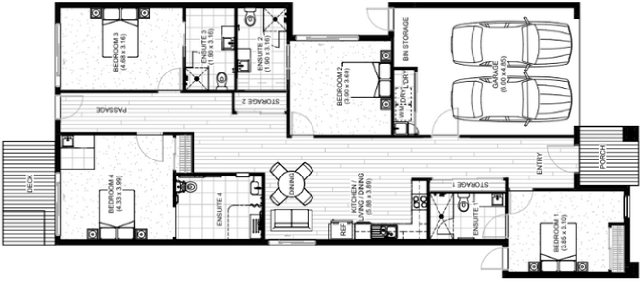
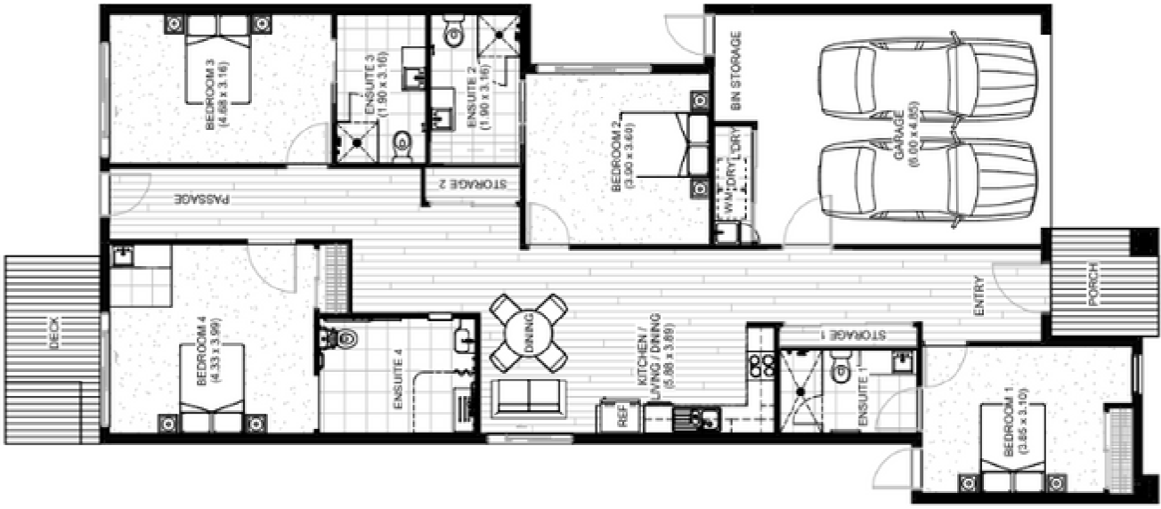
Configuration: 4 Bedrooms | 4 Bathrooms | 2 Car Garage
Land size: 295 m² | House size: 196 m²
Rental appraisal: $1,480 per week (~$75,805.60 p.a.)
Gross yield: 8.7%
Vacancy rate: 1.5%
Location & Growth Drivers
Clyde North sits within Melbourne’s expanding southeast growth corridor, positioned near Berwick, Cranbourne, and Officer. The area continues to benefit from major infrastructure investment including the future Clyde Rail Extension, upgraded arterial roads, and new educational and retail developments.
Saffron Estate is a master-planned community offering access to landscaped parklands, schools, and retail hubs. This balance of lifestyle convenience and affordability supports strong rental uptake and long-term capital appreciation, especially for high-yield Rooming 1B investment models.
Build Specification (Turnkey)
- Rooming 1B-compliant design featuring four bedrooms with private bathrooms and shared communal areas.
- Fully furnished package included, ensuring immediate rental readiness.
- Energy-efficient construction with ducted heating, split-system cooling, and LED downlighting.
- Stone benchtops throughout kitchen, bathrooms, and laundry with soft-close cabinetry and tiled wet areas.
- Stainless steel appliances including oven, cooktop, and rangehood.
- Roller blinds, floor coverings, driveway, fencing, and full landscaping included at completion.
- Comprehensive builder warranty and high-quality turnkey delivery for a hands-free investment.